WolfKit 56 – Kit casă din panouri SIP
De la 12.280€ (fără TVA)
Kit casă modulară compactă, ideală pentru o persoană sau cuplu
Specificații
Detalii tehnice și caracteristici ale modelului WolfKit 56
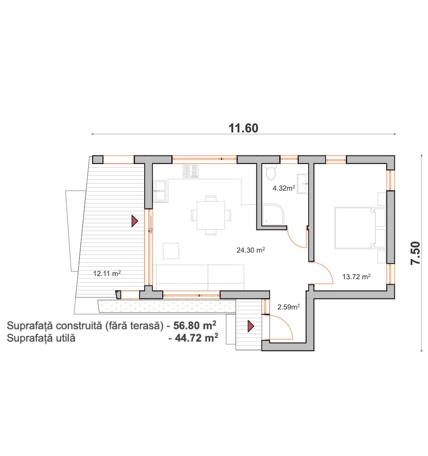
Suprafață construită
56.80 m² - suprafața totală a construcției la sol.
Suprafață locuibilă
44.72 m² - spațiul efectiv de locuit.
Terasă
12.00 m² - spațiu exterior acoperit pentru relaxare.
1 Dormitor
Spații de odihnă confortabile și bine compartimentate.
1 Baie
Dotări moderne pentru confortul zilnic.
1 Living
Spațiu de zi generos pentru familie și relaxare.
Descriere
WolfKit 56 este soluția perfectă pentru cei care doresc o locuință eficientă energetic, la un preț accesibil. Acest kit conține toate componentele necesare pentru a construi o casă completă din panouri SIP.
Imaginile sunt cu titlu de prezentare și nu au valoare contractuală.
Galerie
Imagini și randări ale modelului WolfKit 56
Alte kituri de case SIP
Explorează și alte kituri de case din gama noastră
WolfKit EVO
Kit casă disponibil în două variante: 39 m² sau 54 m²
de la 15.482 € fără TVA
53.70 m² suprafață construită
1-2 dormitore
WolfKit 79
Kit casă cu mansardă amenajabilă ulterior de aproximativ 30 m²
de la 16.888 € fără TVA
79.60 m² suprafață construită
2 dormitore
WolfKit 79 Mansardable
Kit casă cu structură pregătită pentru mansardă
de la 18.736 € fără TVA
79.60 m² suprafață construită
2 dormitore